 |
|
 |
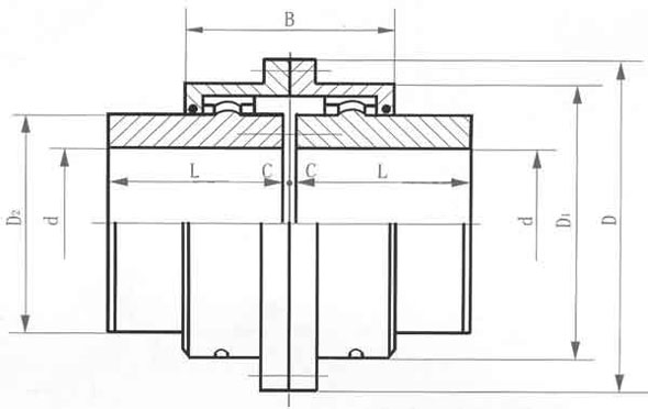
鼓形齿式联轴器
 |
| WGII联轴器 |
|
|
|
| |

本联轴器产品适用于联接水平两同轴线传动轴系,具有一定角向补偿两轴相对偏移性能的鼓形齿式联轴器,工作环境温度-20~+80℃,传递公称转矩为710~160000KN.m。
型号 |
公称
转矩
Tn
N·m |
许用
转速
[n]
r/min |
轴孔
直径 |
轴孔
长度
L |
D |
D1 |
D2 |
B |
C |
重量
kg |
转动惯量
kg·m2 |
d |
Y- J1 |
WG1 |
710 |
7500 |
12~42 |
32~112 |
115 |
88 |
60 |
100 |
3/14 |
4.86 |
0.0063 |
WG2 |
1250 |
6700 |
22~56 |
52~112 |
145 |
108 |
77 |
104 |
4 |
7.48 |
0.016 |
WG3 |
2500 |
6300 |
22~63 |
52~142 |
165 |
125 |
90 |
108 |
7 |
12.2 |
0.033 |
WG4 |
4500 |
5600 |
30~80 |
82~172 |
195 |
145 |
112 |
116 |
3 |
19.6 |
0.073 |
WG5 |
7100 |
5300 |
30~90 |
82~172 |
215 |
168 |
128 |
126 |
3 |
26.1 |
0.126 |
WG6 |
10000 |
5000 |
32~100 |
82~212 |
230 |
185 |
145 |
134 |
5 |
38.0 |
0.213 |
WG7 |
14000 |
4500 |
32~110 |
82~212 |
265 |
210 |
160 |
148 |
5 |
45.0 |
0.35 |
WG8 |
20000 |
4250 |
55~125 |
112~212 |
272 |
225 |
176 |
162 |
5 |
55.8 |
0.46 |
WG9 |
25000 |
4000 |
65~140 |
142~252 |
305 |
245 |
190 |
176 |
5 |
80.5 |
0.77 |
WG10 |
40000 |
3550 |
75~160 |
142~302 |
340 |
280 |
220 |
196 |
5 |
121.8 |
1.54 |
WG11 |
56000 |
3000 |
85~180 |
172~302 |
385 |
325 |
256 |
224 |
8 |
167 |
2.77 |
WG12 |
80000 |
2800 |
120~200 |
212~352 |
435 |
360 |
288 |
250 |
8 |
242 |
4.75 |
WG13 |
112000 |
2500 |
140~220 |
252~352 |
480 |
400 |
320 |
272 |
8 |
309 |
7.76 |
WG14 |
160000 |
2300 |
160~260 |
302~410 |
540 |
440 |
362 |
316 |
10 |
423 |
13.52 |
|
|
|
|
|
 |